Beschreibung
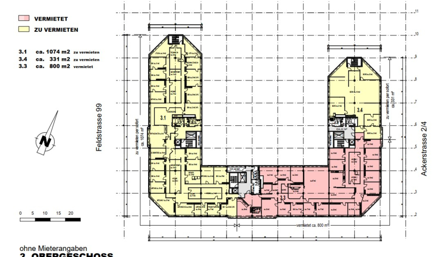
An zentrale Lage, in unmittelbarer Nähe zum Flughafen Kloten vermieten wir, per sofort oder nach Vereinbarung, eine grosszügige und helle Bürofläche im 3. OG mit ca. 331m2. Sanitäre Anlagen, Personen- und Warenlift sind im gemeinsamen Treppenhaus vorhanden.
Die exzellente Infrastruktur sowie die hervorragende Verkehrsanbindung machen diese Bürofläche zum idealen Arbeitsort für Sie und Ihre Mitarbeiter.
Es stehen ferner genügend Garageneinstellplätze zu CHF 150.00 / Mt. und/oder Aussenabstellplätze zu CHF 90.00 / Mt. zur Verfügung. Zusätzliche Lagerräume auf Anfrage.
Haben wir Ihr Interesse geweckt?
Dann freuen wir uns auf Ihre Anfrage mit Angabe des Verwendungszwecks und Ihren dafür erforderlichen Präferenzen an unter Tel. 043 377 17 73 oder verwaltung@omag.ch.
Übersicht
-
- Nutzfläche: 331 m2
- Etage: 3. OG
- Verfügbar: nach Vereinbarung
- Miete/Monat: CHF 5'515.--
- Netto Miete/Monat: CHF 5'240.--
- Nebenkosten/Monat: CHF 275.--
Ausstattung
- Aussicht
- Lift
- Rampe
- Toiletten
- Wasserversorgung
Entfernungen
- Distanz öffentlicher Verkehr 50 m
- Distanz Einkauf 100 m
- Distanz Kindergarten 200 m
- Distanz Primarschule 400 m
- Distanz Oberstufe 400 m
- Objektreferenz: 2000.3004
